中国人非常重视买房时看风水、公寓类型、位置、方位、环境等,都应该尽量选择最好的一个,比如位置、方位、环境等。即使是非专业人员也很容易看出好坏,但是户型图,对于一些新手来说,是很难完全理解的。如何看待户型图的好坏呢?今天,雪宝全屋定制来和大家分享与分析。
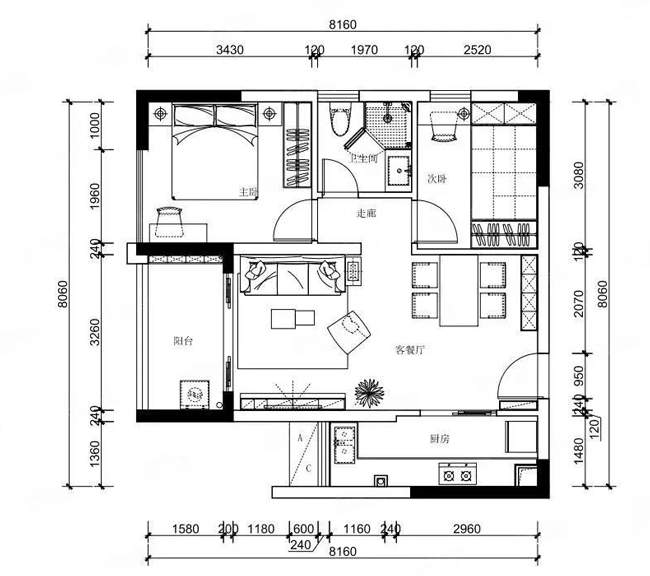
看看卧室、客厅、餐厅等,每个房间是否都是方形的。我们注意公寓的方形,我们更喜欢每个房间都是方形的。
由于广场空间是组合的,利用率会更高。此外,它在家具的选择上更有优势,不容易出现死角问题。

朝南的房子有利于阳光和空气流通,有利于室内的新鲜和干燥。
在冬天,太阳可以深入室内,使室内明亮温暖;在夏天,朝南的房子很容易避免阳光直射,减少阳光直射,使室内很热。

大多数房屋的布局朝南。所谓南北通透,就是指贯穿客厅,南北两侧都有窗户,可以保证空气对流。
一方面,它是明亮的生活,另一方面,它是从北向南通风。只有这样的房子才算是精心设计的房子。

一般来说,承重墙越少越好。同时,还需要观察墙体之间的位置关系,以确定是否可以拆除非承重墙。
厨房和浴室等位置的非承重墙主要涉及水管等管道。如果随意拆除,将影响房屋的使用功能。

建筑面积包括公共区域,如公共楼梯、电梯和过道。所以在判断对于房屋,有必要将可用房价乘以建筑面积,以获得实际可用面积。
一套舒适的公寓将在该区域的空间分布中具有合理的长宽比。进深的比例通常在1到1.5之间。不用说,这也是一个通风和照明舒适的生活空间。

进深:整体长度,从开门算起。
开间:就是房间的宽度。
布局的功能规划应该与你的生活方式相匹配。首先,考虑你的需要。比如你需要多少间卧室?你需要多少间浴室?你需要自习室吗?第二是确定永久居民身份。
根据重要性级别进行排序,然后比较平面图,布局规划将根据个人的生活方式变得合理。

良好的生活循环和人际关系可以提高公寓的利用率。一般来说,室内循环分为访客循环、住宅循环和家务循环。合理户型的三条移动线几乎不会交叉。
访客移动线是客人从门到餐厅和浴室的移动路线;生活活动线主要是卧室和书房等私人区域;家务运动路线主要是厨房和餐厅。
动态区域指客厅、厨房、阳台等活动区域;安静区指卧室、书房等休息区;动态和静态区域指的是这两种类型的场所在不相互干扰的情况下的分离。
